
Strategic Rezoning Planning Proposal: Peat Island and Mooney Mooney
Noel Yaxley coordinated the strategic rezoning proposal for Peat Island and Mooney Mooney, balancing tourism and infrastructure against environmental and cultural priorities.
- Project Type
- Planning Proposal / Rezoning
- Location
- Peat Island & Mooney Mooney, Central Coast NSW
- Services
- Feasibility & AdvisoryPlanning CoordinationStakeholder Engagement
Stimulating Regional Economic Activity Through Land Use Reform
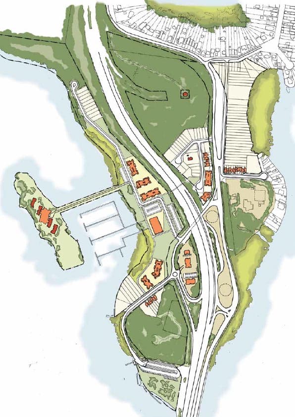
A well-crafted planning proposal has the potential to reshape communities and unlock new economic pathways. The rezoning initiative for parts of Peat Island and Mooney Mooney was one such strategic attempt—aimed at facilitating commercial activity in a largely underutilised waterfront precinct north of Sydney.
The proposal formed part of a broader effort to catalyse economic growth in regional areas by aligning land use with future commercial opportunities. Though the final approval status remains undetermined, the project provides valuable insights into the processes and challenges involved in planning reform.
Planning Proposal Objectives and Scope
The planning proposal sought to reclassify land from existing zones to allow for increased commercial activity. This included:
- Introducing land use permissions for small-scale retail and tourism-related services
- Encouraging investment in marine and recreational infrastructure
- Enhancing alignment between local planning controls and state economic strategies
Through this lens, the planning proposal aimed to build a framework for sustainable local employment and tourism growth, anchored in environmental and cultural sensitivity.
Public Exhibition and Community Engagement
In line with statutory planning procedures, the proposal was placed on public exhibition for a three-month period. This phase was critical for capturing feedback from residents, business operators, and public authorities. Additional community information webinars and a drop-in session supported engagement.
Key engagement considerations included:
- Potential environmental impacts in a sensitive estuarine ecosystem
- Infrastructure capacity and servicing requirements
- Cultural and heritage overlays, particularly involving First Nations perspectives
"Exhibition is not just a requirement—it’s an opportunity to test the economic rationale against community aspirations and planning integrity," noted one planner involved with the process.

Navigating Rezoning Complexities
Rezoning, especially in peri-urban or environmentally sensitive areas, requires balancing competing interests. The Peat Island and Mooney Mooney planning proposal encountered multiple layers of complexity:
- Coordinating across state and local planning frameworks
- Integrating floodplain management and coastal hazard data
- Aligning land use changes with realistic development feasibility
Significant environmental studies were undertaken during the planning phase. It was discovered that protected microbats from the other side of the river used buildings on Peat Island for breeding, adding ecological considerations to the rezoning process.
In May 2022, the planning proposal was withdrawn. Later that year, a deed of agreement for the pending transfer of ownership for Peat Island to the Darkinjung Local Aboriginal Land Council was executed. By May 2025, a Development Application (DA/306/2025) was lodged on behalf of the Council for a mixed-use development including adaptive re-use of existing buildings.
Lessons in Adaptive Land Use Strategy
Even without a confirmed approval outcome, the planning proposal has highlighted several key learnings:
- The value of scenario testing to support rezoning rationale
- The importance of integrated infrastructure and environmental planning
- The role of early collaboration between planning authorities and local stakeholders
These insights reinforce the planning proposal’s broader objective—to support place-based economic activation that respects both landscape and legacy.

Conclusion: Planning Proposals as Catalysts for Change
The Peat Island and Mooney Mooney planning proposal exemplifies how targeted rezoning can serve as a catalyst for regional revitalisation. While its future remains uncertain, the process itself has added to the evolving understanding of strategic land use planning in coastal New South Wales.
As regional areas seek to balance growth and conservation, planning proposals like this play a pivotal role in framing what’s possible—and how that vision can be responsibly implemented.
If your organisation is navigating land use reform or regional development strategy, Upscale Project Management offers the expertise to manage complex planning pathways. Reach out today to explore how we can support your planning ambitions.